Промышленный лизинг Промышленный лизинг  Методички 

0 1 2 3 4 5 6 7 8 9 10 [ 11 ] 12 13 14 15 16 17 18 19 20 21 22 23 24 25 26 27 28 29 30 31 32 33

к стальной клети, они приложены без эксцентриситетов, а к Жб лезобетонной с некоторыми эксцентриситетами, так как ее сечения, определяемые по заданным деформациям , превышают сечения элементов стальной клети, а валки остаются прежних размеров. Поэтому работа элементов железобетонной клети значительно усложняется по сравнению со стальной. Стойки и ригели станин железобетонной клети при эксплуатационных нагрузках с учетом

предварительного обжатия работают на сжатие, изгиб в двух плоскостях и круче-


J,.h

л.л л.л

Рис. 45. Схема приложения и величины действующих эксплуатационных нагрузок на железобетонную клеть стана

Рис. 46. Расчетные схемы железобетонной клети стана

ние. Схема приложения и величины действующих эксплуатационных нагрузок на железобетонную клеть стана показаны на рис. 45. Железобетонная клеть прокатного стана представляет собой пространственную конструкцию.

Клеть была рассчитана приближенным методом, путем расчленения пространственной конструкции на отдельные замкнутые плоские рамы. Расчетные схемы даны на рис. 46. Расчет сечений элементов клети выполнен в соответствии с СН и П [37]. Результаты расчета были проверены экспериментально при испытаниях клети.

Деформации стоек при натяжении всех стержней на 35 т составили 0,225 мм, а деформации между опорными подушками - 0,267 мм. Разница в 0,042 мм получилась, по-видимому, за счет изгиба ригеля вследствие неравномерного обжатия стоек.

При эксплуатационной нагрузке 50 т получены следующие деформации клети: растяжение стойки - 0,03 лл, прогиб ригеля - 0,01 мм и смятие бетона под опорной подушкой - 0,015 мм.

При проектировании клети прокатного стана было поставлено условие, чтобы при эксплуатации клети упругие деформации не превышали 90 мк. 76

Деформация кежду опорными* подушками станин составляет 0,03 + 2 (0,01 + 0,015) = 0,080 мм.

При увеличении вертикальной нагрузки до 100 т трещин в бетоне ригелей не обнаружено. Во время испытаний клети определяли напряжения во всех стойках и ригелях, при этом в стойках только в стальной оболочке, а в ригелях - в стальной оболочке


гоо бс

Рис. 47. Напряжения в сечениях ригеля и стойки:

а, б, в-напряжения в среднем сечеинн ригеля соответственно от предварительного обжатия, от нагрузки 50 т, суммарная; г, д, е - напряжения в среднем сечении Стойки соответственно от предварительного обжатия, от нагрузки 50 т, суммарная

И В бетоне. Полученные напряжения в среднем сечении ригеля станины и в среднем сечении стойки приведены в виде эпюр на рис. 47.

В процессе прокатки вертикальная нагрузка на клеть меняется

от Pin == 35 до Рп,ах = 50 т, а в момент захвата изделия валками

от P„i„ = О до Pnjax = 50 т, т. е. клеть в процессе работы испы-

тывает повторную нагрузку в двух режимах: при q = р""" =

35 О тах

= -gQ- =0,7 и при Q = 50-- При этом оба режима повторяются

по очереди один раз при прокатке каждой единицы изделия. Железобетонная клеть испытана на деформативность на многократно повторную нагрузку при

0,1 и 6 = 1 = 0,7.

В результате испытаний железобетонной клети установлено, что после 18-10* циклов повторения нагрузок упругая деформация между опорными подушками станины равнялась 80 мк и прак-

6103



tHiJeckri не изменялась, а остаточная деформация составила Всего лишь 0,078 мм. При действии горизонтальных нагрузок упругая деформация между опорными подушками станин изменяется всего лишь на 1-2 мк, а поэтому можно считать, что горизонтальные нагрузки практически не влияют на деформацию клети и в расчетах их можно не учитывать.

Напряжения от кручения в ригелях станины при эксплуатационных нагрузках малы: в стальной обшивке 10 кГ/см, в бетоне около 2 кГ/см. Следовательно, ригели станин можно не рассчитывать на кручение.

За свой срок службы железобетонная клеть Кварто-200 может выдержать 12-10* циклов нагрузки.

СТАНИНА КЛЕТИ ПРОКАТНОГО СТАНА „НЛС-1700"

Монолитное выполнение узла станин клети стана Кварто-200 в железобетоне является преимуществом для малых клетей и не может быть общим решением для тяжелых клетей станов, где габарит по высоте станин может превышать 10 л, а вес узла станины 200 т. Значительная длина валков в листовых станах требует установки двух нажимных винтов, а следовательно, двух отверстий в поперечинах каждой станины. Это значительно усложняет конструктивное решение узла станин тяжелых прокатных клетей в железобетоне. Параллельно с НИИЖБом и ВНИИМЕТМАШем в г. Краматорске НИИПТМАШем создана конструкция узла станин клети непрерывно-листового стана НЛС-1700 в железобетонном исполнении . Для выполнения этой задачи потребовались совершенно новые технические решения. Непрерывно-листовой стан НЛС-1700 предназначен для горячей прокатки слябов весом до 15,5 /пи длиной от 2000 до 6300 мм в полосы толщиной 1,2-10 мм, свернутые в рулоны. Рабочие клети чистовой группы служат для непрерывной прокатки полосы, придания ей окончательных размеров и надлежащей чистоты поверхности. Диаметр рабочих валков 700 мм, опорных валков 1400 мм, длина бочки валка 1700 мм. Скорость прокатки 6-15 м/сек. На стане прокатывают углеродистые стали, а также возможен прокат полос из легированных сталей с пределом прочности до 98-10 - f 100 \

м \ См /

на пониженных режимах.

При конструировании железобетонных станин клетей исходят из конкретных условий. Так, при разработке конструкции железобетонной станины стана НЛС-1700 для Карагандинского завода исходили изJycлoвия, что примыкающие к станинам узлы клети были уже изготовлены, то в основу проекта было положено требование максимально сохранить габарит станины. Жесткие

Разработка проекта выполнена инженерами П. В. Кармазиным, С. П. Чу-маченко. 78

Требования сохранение! в железобетонной станине формы и размеров повлекли за собой повышенный расход металла и большие трудности в обеспечении необходимой жесткости станины. При проектировании новых прокатных станов можно создать конструкции железобетонных станин любой нужной жесткости и прочности со значительно меньшим расходом металла.

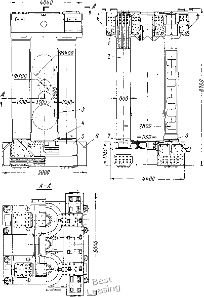
Конструкция узла станины клетей стана НЛС-1700 изображена на рис. 48 и представляетсобой две раздельные станины, жестко связанные между собой внизу двумя стальными поперечными траверсами 8, а вверху двумя боковыми и одной центральной траверсами. Стойки станин 2, верхняя 1 и нижняя 5 поперечины облицованы стальным листом. Планки 4 м 7 на нижней поперечине выполняют роль салазок, по которым выдвигают комплект валков при их смене. Внутри проем облицован листом толщиной 50 мм, к которому прикреплены сменные планки 3. Станины крепят к фундаменту анкерными болтами, пропуская их через отверстия в стальных полых литых плитах 6.

Все элементы станин, которые при действии усилий прокатки испытывают растягивающие напряжения, подвергаются предварительному напряжению за счет натяжения арматуры- В таких элементах бетон всегда будет работать на сжатие, а арматура - на растяжение. Рассмотрим конструирование отдельных узлов железобетонных станин клети прокатного стана НЛС-1700 (рис. 49).

Узлы и элементы железобетонной станины клети, в которых по условиям работы возможны растягивающие напряжения, армируют напрягаемой стержневой арматурой диаметром 40 мм из стали 30ХГ2С. Чтобы не ослаблять сечение напрягаемых стержней нарезкой резьбы, с обеих концов их наваривают контактной стыковой электросваркой коротыши с резьбой М42.

При конструировании станин предусматривалось, что бетонировать их будут на месте монтажа. Металлический каркас станин проектировался таким, чтобы была обеспечена необходимая его жесткость при механической обработке и транспортировании. Разработанная конструкция технологична, изготовление отдельных элементов металлического каркаса несложно.

Металлический каркас станин запроектирован из полых стоек прямоугольного сечения и литых верхних и нижних балок. Стойки каркаса выполняют сварными из листовой стали толщиной 18 мм, а со стороны направляющих планок - окна станины из листа толщиной 50 мм для получения необходимой жесткости каркаса при механической обработке окна станины. Верхние и нижние балки сделаны из стального литья и в соединении со стойками образуют общую жесткую конструкцию каркаса. Такая конструкция каркаса станин позволяет производить: полную механическую обработку, контрольную сборку клети на заводе-изготовителе, транспортирование каркасов станин по железной дороге и бетонирование




Рис. 48. Узел станин прокатного стана НЛС-1700 с железобетонными отъемными станинами:

/ - верхняя поперечина; 2 - стойки станин; 3 - сменные планкн; 4-7 - планки на нижней поперечине; J -нижняя поперечина; 6 - стальная литая полая плита; 8 - нижние траверсы


6 А, И. Дрыга 1138



0 1 2 3 4 5 6 7 8 9 10 [ 11 ] 12 13 14 15 16 17 18 19 20 21 22 23 24 25 26 27 28 29 30 31 32 33