Промышленный лизинг Промышленный лизинг  Методички 

0 1 2 3 4 5 6 7 8 9 10 11 [ 12 ] 13 14 15 16 17 18 19 20 21 22 23 24 25 26 27 28 29 30 31 32 33

станин на месте монтажа, не нарушая классов точности посадочных мест. Поскольку напрягаемую арматуру натягивают после бетонирования, для размещения ее и предотвращения сцепления бетона с арматурой последняя размещается в трубах диаметром 62 мм. Стойки железобетонной станины клети, подвергающиеся растяжению, армируют продольной напрягаемой арматурой 7. Располагают ее в стойках так, чтобы центр тяжести сечения стойки совпадал с центром тяжести суммарной эпюры изгиба и растяжения и центром затяжки. В местах передачи усилий от затяжки арматуры 7 на верхнюю поперечину предусмотрены планки 6 и 13 из листа толщиной 100 мм для предотвращения местного смятия бетона и распределения давления по площади.

Для восприятия растягивающих напряжений в верхней поперечине железобетонной станины от действия изгибающего момента и поперечной силы в поперечине располагают продольную напрягаемую арматуру 3 в виде сквозных шпилек длиной 4300 мм. Среднюю часть верхней поперечины в плоскости стоек армируют напрягаемой арматурой в виде коротких шпилек 12 длиной 1810 и 1410 мм. Один из концов шпилек в стальной отливке закрепляют на резьбе.

В местах передачи усилий от напряжения шпилек (арматуры) для равномерной передачи нагрузки на бетонные поверхности и защиты бетона от местного смятия на верхней поперечине предусмотрены планки 4 из листа толщиной 50 мм. Для связи поверху между обеими станинами клети предусмотрены стяжные шпильки / и 16 длиной соответственно 5000 и 6030 мм. Там, где они опираются на наружную поверхность бетона, ставят планки 2 я 15 из листа.

Верхняя траверса 8 соединена с верхней поперечиной станины болтами 9 (Л164 X 280). В сжатой зоне верхней поперечины устанавливают ненапрягаемую арматуру 11 из стали класса А-I диаметром 24 мм, которая с помощью хомутов связана с напрягаемой араматурой в растянутой зоне поперечины. Для повышения жесткости станины, учитывая, что в стойках наблюдаютс большие растягивающие усилия, верхняя и нижняя поперечины приняты несколько большей высоты.

За счет повышения жесткости поперечин удалось снизить величины напряжений от изгибающих моментов во внутренних входящих углах станины. В железобетонных рамах для смягчения перенапряжений входящие углы необходимо проектировать в виде закруглений или вутов. В станине НЛС-1700, конструктивно, по расположению узлов и механизмов, вуты выполнить нельзя, поэтому пришлось повысить жесткость поперечины. Верхние и нижние поперечины в железобетонных станинах можно выполнить в любых требуемых для железобетона сечениях.

Для повышения жесткости углов сопряжений поперечин со стойками устанавливают дополнительные наклонные стержни 10

диаметром 24 мм. Таким же образОм конструируют йижйюю поперечину станины. Напрягаемую арматуру (шпильки) располагают на таком расстоянии, чтобы обеспечить их нормальное натяжение с помощью гидравлических домкратов.

В станине НЛС-1700 расстояния между напрягаемой арматурой (шпильками) приняты от 160 до 200 мм. Арматуру верхних и нижних поперечин станин располагают таким образом, чтобы ее центры натяжения совпадали с центрами тяжести эпюр изгибающих моментов в зоне растягивающих напряжений. Наружный каркас станины, облицовка верхних и нижних поперечин листовой сталью запроектированы так, что они одновременно являются опалубкой при бетонировании.

При конструировании предусмотрена технологичность изготовления элементов и необходимая жесткость каркасов станин для транспортирования. Арматурные стержни в каркасе станины размещены так, что наконечники глубинных вибраторов могут свободно проходить между стержнями каркаса. В этом случае обеспечено качественное уплотнение бетона в конструкции. Для изготовления станин клетей следует предусматривать жесткие бетоны высоких марок (600 и более), так как в этом случае усадка бетона будет минимальной.

Для станины клети НЛС-] 700 марка бетона принята 600. Чтобы предупредить возможность выпучивания боковых листов стоек при бетонировании, к листам приварены круглые стержни диаметром 10 мм в двух взаимно перпендикулярных направлениях. Для надежности анкеровки боковых листов стоек к ним приварены анкеры в виде отрезков стержней того же диаметра, длиной 200 мм с шагом 250 мм по вертикали.

В процессе эксплуатации стана необходимо периодически контролировать арматуру с помощью гидродомкратов с манометрами. При ослаблении затяжки натяжение доводят до требуемого.

Преимущества конструкции узла станин рабочих клетей стана НЛС-1700 заключаются в следующем: экономия металла на изготовление станин рабочих клетей составляет на одну клеть 130 т; значительно уменьшается цикл изготовления; снижения стоимости изготовления; на заводе изготовляется только металлический каркас станины, а бетонируют его на месте монтажа, что облегчает транспортирование станин и их монтаж; станина не уступает по прочности, жесткости и долговечности в работе станинам из стали. Для очень крупных станов и в тех случаях, когда по условиям прокатки от станины не требуется большой жесткости, целесообразно применять составные станины. При этом облегчается изготовление, обработка и транспортирование.

В тонколистовых станах горячей и холодной прокатки имеет значение не только прочность станин (определяемая величиной возникающих в них напряжений), но и жесткость, т. е. величина их деформации при прокатке. Если деформация станин при 6* 83



прокатке будет значительной, то это отразится На величине допусков по толщине прокатываемых листов.

Станины рассчитывают на максимальное усилие, действующее при прокатке на шейку валка и передающееся на нее через подушки, нажимной винт и нажимную гайку. Горизонтальными усилиями, действующими на валки и станину в момент захвата и при прокатке с натяжением, обычно пренебрегают, так как по сравнению с вертикальным усилием они незначительны.

В станине прокатного стана 1700 наибольшее давление прокатки Р„р = fSOO т, а момент прокатки УИ„р = 30 ООО кГм. Для расчета станины принимается, что давление металла на валок Р направлено вертикально.

Таким образом, на ригель каждой станины от шеек верхнего

и нижнего опорных валков через подушки и нажимной винт

будут действовать силы, равные -у- = 900 т.

В конструктивно принятых параметрах железобетонной станины находят сечения и волокна, которые испытывают растягивающие напряжения.

В центре тяжести эпюры растяжения прикладывается результирующая усилий предварительного натяжения арматуры. Ее величину определяют с таким расчетом, чтобы в условиях эксплуатации бетон элементов станины работал на сжатие, а арматура на растяжение.

При определении напряжений в расчет вводят приведенную площадь, т. е. площадь арматуры и металла, входящего в расчетное сечение, приводят к площади бетона посредством расчетного числа п.

Кроме условий прочности, станина также должна удовлетворять условиям жесткости.

При расчете станины на жесткость определяют суммарную деформацию, слагающуюся из деформации стоек и ригелей. Полученную суммарную деформацию всей станины сравнивают с допустимой деформацией для станин.

Пример. Расчет предварительно напряженной железобетонной станины непрерывно-листового прокатного стана НЛС-1700.

Исходные данные для расчета: наибольший момент прокатки Л!„р = = 30 ООО кГм; наибольшее давление прокатки Р„р = 1800 т; расстояние между осями нажимных винтов 2800 мм; продолжительность цикла прокатки 40-120 сек; число пропусков за цикл - 1; максимальная деформация станины допускается равной 1,08 мм *. Бетон принят марки 600 с £6 = 0,41-10» кГ/сл; напрягаемая арматура из стали Ст. 30ХГ2С с о = 9000 кГ/см.

1. Проверка прочности станины.

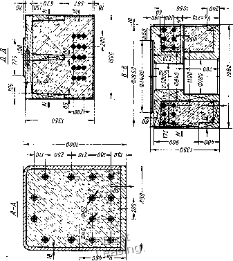
Построение нейтральной линии станины и подсчет моментов инерции сечений. Схема станины изображена на рис. 50.

*Морозов Б. А. Исследование жесткости рабочих клетей прокатных станов. «Вестник машиностроения». 1953, № 11.





А. Сечение А-А. Координата нейтральной плоскости (рис. 51)

где н - площади участков сечений бетона и металла; 2 1-10

п = Q 41 = 5,125 -отношение модулей упругости металла и бетона;

(/, н yj - расстояние от центра тяжести участков сечений до нижней кромки сечения.

93,2.76,4.51,6- 28,3.2 (2.15 + 2,33 + 54 + 79 + 90) + + 5,125 [80.5.2,5 - 80.1,8.99,1 + 2.93,2.1,8-51,6 + 4.4,48.33 Ч + 4.4,48-15 + 2.4,48 (54 + 79 + 90)]

Уа=-

93,2.76,4- 14.28,3 + 5,125.(80-5 + 80.1,8 + 2.93,2.1,8 + + 4.4,48+ 4.4,48 + 2.4,48 + 2.4,48 +2.4,48)

Приведенная площадь сечения F°p = "л-

Площадь бетона Fg = 6724 см. Площадь металла = 943 см.

Fp = 6724+ 5,125.943 = 11 561 сл<2. Приведенный момент инерции сечения Л-Л стоек станины

= 46 см.

где /б - момент инерции бетона; - момент инерции металла.

76,4.93,23

J6 =

+ 76,4.93,2-5,62-3,14.6

14.1+441 (ЗР + ,32) +

(82 + 332 + 442)

= 5 047 681 см*.

у.= 4-80.5.43.52 + -1 + 1,8.80.53,12 + 2-Ь +

+ 2.1,8.93,2.5,62+14(6«-5,551) + 4 З.Н (6 - 5,552) (ЗР + 13) +

3,14

(62 - 5,552) (§2 332 442) = 1 460 074 см*.

J%p = 5 047 681 + 5,125.1 460 074 = 12 523 ООО см*.

Б. Сечение Д-Д Координата нейтральной плоскости (см. рис. 51) yd = 48,4 см.

7л, = 7 590 966 см*. Je = 34 070 997 см*. Приведенный момент инерции сечения Д-Д нижнего ригеля.

/°р = 34 070 997+ 5,125-7 590 966= 6,28-10 cм. Площадь бетона F = 16 862 см. Площадь металла F„ = 4260 см. Приведенная площадь сечения

fp = 16 862 + 5,125-4260 = 38 662 сл«1

В. Сечение В-В Координата нейтральной плоскости (см. рис. 51) уд = 71,5 см. /б = 8 898 365 см*. J„ = 13 895 729 см*.

Г„р = 8 898 365 + 5,125 13 895 729 = 80 100 ООО см*.

:ече1

Приведенная площадь сечения f«p = 9426 + 5,

Определение деформаций в станине рабочей клети

Площадь сечения бетона Fk = 9426 см; площадь сечения металла F„ = = 7680 см\

f*p = 9426 + 5,125-7680 = 48776 см.

Деформации (угловые и линейные) определяем исходя из упругой работы железобетонной рамы.


г пр Jnp

6J =

-1-~ -

6) \

Рис. 52. Расчетные характеристики станины:

а - расчетная схема железобетонной Станины; б - момент в стойках; в - эпюра моментов

Исходные данные: Р = 900 ООО кГ; I = 251 см; h = 709,9 см; 7* = = 80,1. \Ф см\ 7р = 62,8 • 10« см\ 7°р = 12,523-106 см\ ip = 48 776 см = 38 662 см; Fp = И 561 см; Еб= 0,41.10 кГ/см; h= 590 см.

Расчетная схема станины дана на рис. 52, а. Моменты инерции и площади сечений приведены К бетону.



0 1 2 3 4 5 6 7 8 9 10 11 [ 12 ] 13 14 15 16 17 18 19 20 21 22 23 24 25 26 27 28 29 30 31 32 33