Промышленный лизинг Промышленный лизинг  Методички 

0 1 2 3 4 5 6 7 8 9 10 [ 11 ] 12 13 14 15 16 17 18 19 20 21 22 23 24 25 26 27 28 29 30 31 32 33 34 35 36 37 38 39 40 41 42 43 44 45


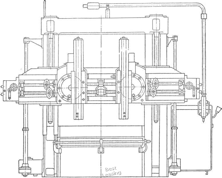
Рис. 26. Общий вид двухстоечного карусельного станка модени 1М553



ХХУЛ

t-зах.

JOilX

USOoB/muh


t8MM

XXIV



tf ""76 rtiJ


\n-}275 об/тн

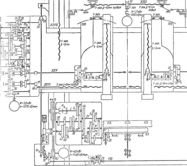
Рис. 27. Кинематическая схема двухстоечного карусельного стайка модели 1М5БЗ




Рис 28. Общий вид токарноревольверного станка модели I341T



0 1 2 3 4 5 6 7 8 9 10 [ 11 ] 12 13 14 15 16 17 18 19 20 21 22 23 24 25 26 27 28 29 30 31 32 33 34 35 36 37 38 39 40 41 42 43 44 45