Промышленный лизинг Промышленный лизинг  Методички 

0 1 2 3 4 5 6 7 8 9 10 11 12 13 [ 14 ] 15 16 17 18 19 20 21 22 23 24 25 26 27 28 29 30 31 32 33 34 35 36 37 38 39

воздуха, МПа (обычно р = 4 кгс/см); г =/i - передаточное отношение плеч рычага-усилителя; h и 4 - длины большего и меньшего плеч рычага-усилителя, см; ri = 0,85-0,9 - КПД, учитывающий потери на трение в цилиндре.

Уплотнения п и е в м о ц и л и н д р о в. Основным условием нормальной работы пневмоцилиндра является его полная герметичность. Пневмоцилиндр герметичен, если сжатый воздух, поступающий в его полости, не утекает в атмосферу и не просачивается нз одной полости в другую. Для герметизации пневмоцйлйндров применяют уплотнения кольцевых зазоров в сопряжениях поршней с цилиндрами, штоков с отверстиями.

В пневмоцилиндрах применяются два типа уплотнений:

1) манжеты V-образного сечения из маслостойкой резины по ГОСТ 6969-54 для уплотнения поршней и штоков пневмоцйлйндров;

2) кольца круглого сечения из маслостойкой резины по ГОСТ 9833-73 для уплотнения поршней и штоков пневмоцйлйндров.

К пневматическим цилиндрам предъявляют определенные технические требования. Они должны быть: герметичны и не допускать утечки сжатого воздуха при давлении 0,6 МПа (6 кгс/см); проверены на прочность при давлении сжатого воздуха 0,9 МПа (9 кгс/см); проверены на работоспособность; перемещение поршня со щтоком из одного крайнего положения в другое в диапазоне рабочих давлений 0,2-0,6 МПа (2-6 кгс/см) должно происходить плавно, без рывков, а также обеспечивать: осевую силу, развиваемую поршнем со штоком цилиндра при его перемещении с давлением сжатого воздуха 0,6 МПа (6 кгс/см), не менее 85% от расчетной силы Q.

При применении V-образных манжет сопряжение поршня с цилиндром производится с посадкой А4/Х4, шероховатость рабочей

поверхности цилиндра 0,5, i,s,

В случае использования колец круглого сечения применяют

посадку А/Х с шероховатостью поверхности цилиндра / .

На основные размеры стандартных пневмоцйлйндров двустороннего действия имеется ГОСТ 15608-70.

Цилиндры всех типов и диаметров имеют унифицированные детали (гильзы, штоки) и отличаются только крышками.

Поршни изготовляют сборными и цельными нз чугуна или алюминиевого сплава.

Штоки стальные на одном конце имеют шейку, на которую устанавливают поршень и закрепляют гайкой, а на втором конце - наружную или внутреннюю резьбу для соединения штока через тягу и промежуточные звенья с зажимным устройством приспособления.

Диафрагмеиные пневмоприводы (пневмокамеры). Пневмокамеры с упругими диафрагмами бывают одно- и двустороннего действия.

В зависимости от способа компоновки с приспособлениями пневмокамеры подразделяют на универсальные, встраиваемые и прикрепляемые.

На рнс. V.11, а показана пневмокамера одностороннего действия с тарельчатой (выпуклой) диафрагмой, слулощая для перемещения зажимных устройств при закреплении деталей в стационарных


Рис. V.11. Типы пневмокамер одностороннего действия с тарельчатой диафрагмой (а) и двустороннего действия (б)

приспособлениях. Пневмокамера состоит из корпуса 5 и крышки; между ними винтами зажата тарельчатая,резинотканевая диафрагма 6, жестко прикрепленная к стальному диску 4, установленному на штоке 8. От распределительного крана сжатый воздух через штуцер / поступает в бесштоковую полость пневмокамеры и перемещает диафрагму 6 с диском и штоком вправо. При этом шток через тягу и промежуточные звенья перемещает залимные устройства приспособления и деталь зал<имается. Во время перемещения диафрагмы вправо воздух из штоковой полости через отверстие а уходит в атмосферу. После обработки детали слсатый воздух из бесштоковой полости через отверстие штуцера / и распределительный кран выпускается в атмосферу. Пружины 2 и 3 отводят диафрагму с диском и щтоком влево, залсимные устройства расходятся, и деталь разлсимается. Пневмокамера крепится к корпусу приспособления шпильками 7.

На рис. V.11, б приведена нормализованная пневмокамера двустороннего действия, применяемая для пере.мещения зажимных элементов приспособления при зажиме и разжиме деталей в стацио-



парных приспособлениях. Корпус пневмокамеры состоит из двух крышек 2, между которыми винтами зажата тарельчатая резинотканевая диафрагма 3, жестко, закрепленная кольцом с заклепками на стальном диске 4, который сидит на шейке штока и закреплен корончатой гайкой. Сжатый воздух через штуцер в отверстии I подается в бесштоковую полость пневмокамеры и перемещает диафрагму 3 с диском 4 и штоком 5 вправо. При этом шток через промежуточные звенья перемещает зажимные устройства приспособления и деталь зажимается. После обработки детали сжатый воздух через штуцер в отверстии 7 поступает в штоковую полость пневмокамеры и перемещает диафрагму 3 со штоком 5 влево в исходное положение. При этом шток через промежуточные звенья раздвигает зажимные элементы приспособления и деталь разжимается. В это время воздух из бесштоковой полости через штуцер в отверстии 1 поступает в распределительный кран и уходит в атмосферу. Пневмокамера крепится к корпусу приспособления шпильками 6.

Корпус и крышку камеры одностороннего действия изготовляют из серого чугуна, алюминиевого сплава АЛ9В или штампуют из стали.

Тарельчатые диафрагмы изготовляют в пресс-формах из четы-рехслойной ткани бельтинг (ГОСТ 2924-67), с обеих сторон покрытой маслостойкой резиной. Кроме тарельчатых применяют плоские диафрагмы, вырезанные из листовой технической резины (ГОСТ 7338-65) с тканевой прокладкой толщиной до 3 мм; они могут также изготовляться из транспортерной ленты (ГОСТ 20-62).

В пневмокамерах применяются расчетные диаметры D (ГОСТ 9887-70): 75, 125, 160, 200, 250, 320, 400, 500 мм. Толщину диафрагмы h выбирают в зависимости от ее диаметра D(/i = 48 мм). Диаметр d опорных дисков принимают для резинотканевых диафрагм d=0,7D; для резиновых t? = D-2/г-(24) мм.

Расчет диафрагменных пневмоприводов. Основными величинами, определяющими работу пневмокамеры, являются сила Q на штоке и длина рабочего хода штока.

В пневмокамерах усилие иа штоке менеятся при перемещении штока от исходного положения в конечное. Оптимальная длина хода штока пневмокамеры, при котором сила Q изменяется незначительно, зависит от расчетного диаметра D диафрагмы, ее толщины h, материала, формы и от диаметра d опорного диска диафрагмы.

Если перемещать шток пневмокамеры на всю длину рабочего хода, то в конце хода штока вся энергия сжатого воздуха будет расходоваться на упругую деформацию диафрагмы, и полезное усилие на штоке снизится до нуля. Поэтому используют не всю длину рабочего хода штока диафрагмы, а только часть ее, чтобы сила на штоке в конце хода составляла 80-85% силы при исходном положении штока.

На рис. V.12, а, б, в представлены рациональные длины ходов штока от исходного до конечного положений.

Приближенно сила Q на штоке пневмокамер одностороннего действия для тарельчатых (выпуклых) п плоских диафрагм из прорезиненной ткани определяется по формулам:

в исходрюм положении штока

Q={ni\6){D-[-drp-Qu

после перемещения штока на длину 0,3D для тарельчатых и 0,07£) для плоских диафрагм

Q==0,75n/16) {D-\-dfp-Qi.

(0,25-0,35)11

1 Зитм

{0,18-0,22)В {0,12-05)1}

Зажим

JL.-

{0.17-0.72)11

Зажим

Рис. V.12. Оптимальные длины ходов штока от исходного до конечного положения- зажим:

а- для тарельчатой резинотканевой диафрагмы из ткани бельтинг; б - плоской резинотканевой диафрагмы; в - плоской резиновой диафрагмы

Сила Q на штоке пневмокамеры для плоских резиновых диафрагм при подаче сжатого воздуха в бесштоковую полость: в начальном положении штока

Q = (я/4)2; Q.

в положении штока после перемещения на длину 0,22D Q = (0,9.<4)cf2/;-Qi.

Оптимальная длина хода штока пневмокамеры одностороннего действия от исходного до конечного положения штока [см]: для тарельчатой резинотканевой диафрагмы

1 = (0,25-0,35) D;

для плоской резинотканевой диафрагмы 1 = (0,18-ь0,22) D.

Приближенно сила Q на штоке диафрагменной пневмокамеры двустороннего действия для тарельчатых (выпуклых) и плоских



резинотканевых диафрагм при подаче сжатого воздуха в бесштоковую полость определяется по формулам: в исходном положении штока

Q={nil6){DJrdfp;

после перемещения штока на длину 0,3D для тарельчатых и 0,07D для плоских резинотканевых диафрагм

д = (0,75я/16) (d + Dfp.

Сила Q ка штоке при подаче сжатого воздуха в щтоковую полость:

в исходном положении штока

Q = {nll6)[iD-\-dY-dl]p;

после перемещения штока на длину 0,3D для тарельчатых и 0,07D для плоских резинотканевых диафрагм

Q = (0,75я/16) [(D + cf2)

Сила Q на штоке пневмокамеры для плоских резиновых диафрагм при подаче сжатого воздуха в бесштоковую полость:

Q=iK;4:)dp.

после перемещения штока яа длину 0,22D

д=(0,9я/4) dp.

Здесь D - диаметр диафрагмы внутри пневмокамеры, см; d - диаметр опорного диска диафрагмы, см; р -давление сжатого воздуха, МПа (кгс/см2); Qi - сопротивление (сила) возвратной пружины при конечном рабочем положении штока, И (кгс); di - диаметр штока, см.

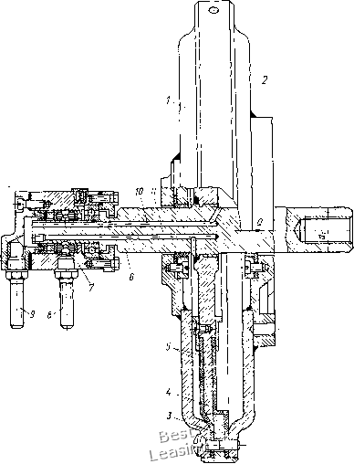
На рис. V.13 показана вращающаяся пневмокамера двустороннего действия, которая через шток, тягу и промежуточные звенья перемещает кулачки патрона при зажиме и разжиме детали в патроне.

Пневмокамеру устанавливают на заднем конце шпинделя токарного станка. Корпус пневмокамеры состоит из крышек / и 2, между которыми винтами зажаты промежуточный диск 3 и две резинотканевые диафрагмы 5. Между диафрагмами установлен диск 4, жестко соединенный со штоком 6 и диафрагмами. Сжатый воздух через штуцер .9 и канал 10 поступает в правую полость пневмокамеры и перемещает диафрагмы 5 со штоком 6 влево. Шток 6 через тягу и промежуточные звенья перемещает кулачки патрона к центру, и деталь зажимается. После обработки детали сжатый воздхх через штуцер 8 и какал 11 поступает в левую полость пневмокамеры и диафрагмы 5 со штоком 6 перемещаются вправо. Шток через тягу и промежуточные звенья разводит кулачки патрона, и деталь разжимается.

На левом конце штока 6 закреплен воздухоприемник 7 двустороннего действия, через который сжатый воздух проходит в правую или левую полости пневмокамеры. При вращении шпинделя станка воздухоприемник 7 не вращается, но движется со штоком 6 вдоль его оси.

Для уменьшения веса крышки вращающихся пневмокамер следует изготовлять алюминиевыми.

Пневмокамеры (рис. V.13) применяют в тех случаях, когда шток должен передавать значительные силы зажимным устройствам патрона при закреплении и раскреплении дета.яи. Основные размеры пневмокамеры нормализованы.


Рис. V.13. Вращающаяся пневмокамера двустороннего действия



0 1 2 3 4 5 6 7 8 9 10 11 12 13 [ 14 ] 15 16 17 18 19 20 21 22 23 24 25 26 27 28 29 30 31 32 33 34 35 36 37 38 39