Промышленный лизинг Промышленный лизинг  Методички 

0 1 2 3 4 5 6 7 8 9 10 11 12 13 14 15 16 17 18 19 20 21 22 23 24 25 26 27 28 29 30 31 32 33 34 35 36 37 38 39 40 41 42 43 44 45 46 47 48 49 50 [ 51 ] 52 53 54 55 56 57 58 59 60 61 62 63 64 65 66 67 68 69 70 71 72

Норма точности

Показатель точности или комплекс

Степень точности

Наименование

Обозначение

OJ о з: о

OJ H

Наибольшая кинематическая погрешность

Накопленная погрешность шага по зубчатому колесу

Накопленная погрешность шага по зубчатому колесу и накопленная погрешность к шагов

Fpr. Fpkr

Погрешность обката и радиальное биение зубчатого венца

Far. Frr

Радиальное биение зубчатого венца

It 1= =

Погрешность обката зубцовой частоты и отклонение шага

for-

fptrr

Отклонение шага

fptr

ro m Й <"

Отклонение межосевого расстояния в передаче и суммарное пятно контакта в передаче

Примечание. Таблица приведена в сокращении

Установлено шесть видов сопряжений зубчатых колес в передаче, обозначаемых в порядке убывания гарантированного бокового зазора буквами (Д В, С, D, Е, Н) и пять видов допусков на боковой зазор (рис. 5.21).

Гарантированный боковой зазор должен обеспечить нормальные условия работы передачи, то есть исключить возможность заклинивания при ее нагреве и создать необходимые условия смазки зубьев.

Очевидно, что зазор должен еще и компенсировать погрешности изготовления и монтажа передачи. Следовательно, для передачи с определенным боковым зазором далеко не безразлично, с какой степенью точности она выполнена. Поэтому установлены соотношения между видами сопряжения зубчатых колес в передаче и степенью точности по нормам плавности работы (табл. 5.23).

Таблица 5.23

Вид сопряжения

Степень точности по нормам плавности работы

4-12

4-11



А в с D Е н


jn min - гарантированный боковой зазор

jnmin=0

Рис. 5.21

Примечание. Сопряжение вида В обеспечивает минимальную величину бокового зазора, при котором исключается возможность заклинивания стальной или чугунной передачи от нагрева при разности температур зубчатых колес и корпуса в 25°С.

Примеры условного обозначения конических передач

Передача или пара со степенью точности 7 по всем трем нормам с видом сопряжения зубчатых колес С:

7-С ГОСГ 1758-81

Передача или пара со степенью точности 8 по нормам кинематической точности, со степенью 7 по нормам плавности, со степенью 6 по нормам контакта зубьев, с видом сопряжения В :

8-7-6-ВаГОСГ?758-8?.

5.11. Конические зубчатые колеса 5.11.1. Простановка размеров

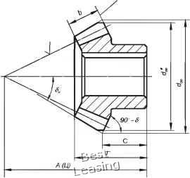
На изображении конических колес должны быть указаны (рис. 5.22): габаритный размер Г; внешний диаметр вершин зубьев до притупления кромки d; внешний диаметр вершин зубьев после притупления кромки dge,- расстояние от базовой плоскости до плоскости внешней окружности вершин зубьев С; угол конуса вершин зубьев g: угол внешнего дополнительного конуса 90°- S. ширина зубчатого венца Ь; базовое расстояние ЛСЦ) - размер, входящий в размерную цепь; положение измерительного сечения; размеры фасок или радиусы кривизны линий притупления на кромках зубьев. Допускается указывать размеры фасок или радиусы кривизны линий притупления в технических требованиях чертежа.



Измерительное сечение


Рис 5.22

На чертеже зубчатого колеса должна быть помещена таблица параметров зубчатого венца (рис. 5.23), состоящая из трех частей: первая часть - основные данные; вторая часть - данные для контроля; третья часть - справочные данные.

Части отделяются друг от друга сплошными основными линиями

5.11.2. Выбор параметров конического зубчатого колеса, допусков размеров, формы, взаимного расположения и шероховатости поверхности

На рис. 5.23 приведена схема установки конического зубчатого колеса в механизме и условные обозначения технических требований, которые следует к ним предъявлять

Ниже в порядке номеров позиций (см рис. 5.23) даны краткие рекомендации по выбору параметров и технических требований к коническим зубчатым колесам.

Позиция 1. Модуль тд.

В качестве расчетного принят внешний окружной модуль т, который выбирается по табл. 5.5. Принимается т = 5 мм.

Позиция 2. Число зубьев конического зубчатого колеса Z2.

Числа зубьев шестерни и колеса ортогональной конической зубчатой передачи выбирают по принятому передаточному числу.

Понижающие конические передачи могут выполняться с передаточными числами от 1 до 10.



0 1 2 3 4 5 6 7 8 9 10 11 12 13 14 15 16 17 18 19 20 21 22 23 24 25 26 27 28 29 30 31 32 33 34 35 36 37 38 39 40 41 42 43 44 45 46 47 48 49 50 [ 51 ] 52 53 54 55 56 57 58 59 60 61 62 63 64 65 66 67 68 69 70 71 72